Tentang SINAPUS
SINAPUS merupakan singkatan dari Sistem Navigasi Kampus yang bertujuan membantu seluruh mahasiswa, dosen, laboran dan tenaga kependidikan serta semua pengunjung Fakultas Teknik Universitas Mataram dalam mensosialisasikan pentingnya mengenal jalur evakuasi dengan sistem yang lebih bervariasi serta berfokus mengutamakan aspek Keselamatan, Kesehatan Kerja dan Lingkungan (Safety, Health and Environment) bagi civitas akademika maupun pengunjung Gedung Fakultas Teknik Universitas Mataram. Panduan keselamatan kerja di Fakultas Teknik Universitas Mataram mengacu pada sistem manajemen keselamatan, kesehatan kerja, dan perlindungan lingkungan.
Selamat Datang di SINAPUS
Sistem ini membantu menunjukkan jalur evakuasi menuju titik kumpul di area FT-UNRAM
Features
Navigation
Navigation merupakan tool penunjuk arah tiap ruang menuju jalan keluar.
Maps
Maps merupakan tool membantu memetakan tiap gedung FT-UNRAM dan menampilkan tata ruang dalam 2D.
Search
Search merupakan tool membantu mencari lokasi awal dan akhir dalam maps indoor Gedung FT-UNRAM.
Augmented Reality
AR membantu menunjukkan titik kumpul tiap gedung di Area Fakultas Teknik UNRAM.
Vision
Visi dari SINAPUS yaitu membantu tiap pengguna memahami letak titik kumpul dan jalur evakuasi dari dalam ke luar gedung FT-UNRAM.
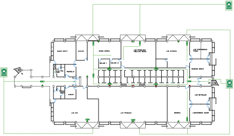
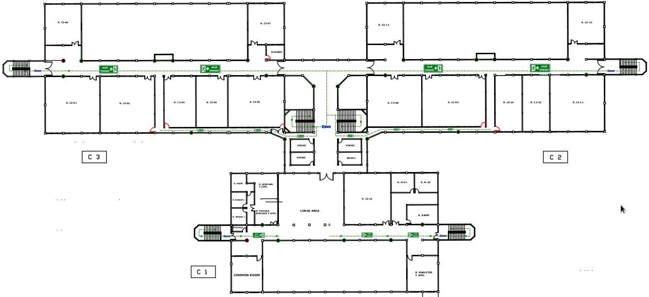
Tampilan Denah Jalur Evakuasi Gedung Fakultas Teknik UNRAM
Untuk menjamin kesehatan dan keselamatan kerja, seluruh mahasiswa, dosen, laboran dan tenaga kependidikan serta semua pengunjung Fakultas Teknik UNRAM diharapkan untuk selalu memperhatikan jalur evakuasi yang tersedia dari tiap ruangan serta titik kumpul yang mengarahkan keluar gedung. Adapun jalur evakuasi untuk tiap ruangan gedung FT-UNRAM adalah sebagai berikut:
Contact Us
BTN Sweta Indah
Mataram, NTB 83237
wisnukusuma99@gmail.com
+62 857 9249 1448
